roger connnolly

architect + interior designer + artist

About Roger Connolly

Roger Connolly qualified as an architect in 1991. Following that, he spent around 15 years working full-time as an artist, an experience that profoundly shapes his approach. Today, he works exclusively on residential projects, relishing the transformation of dull, cramped English homes into bright, comfortable, and joyful spaces.

As a well-rounded architect, he handles everything from planning permissions and construction design to fine interior detailing. What sets him apart is his direct, hands-on involvement; he manages and builds his own projects, giving him a rare understanding of real-world construction challenges and costs.

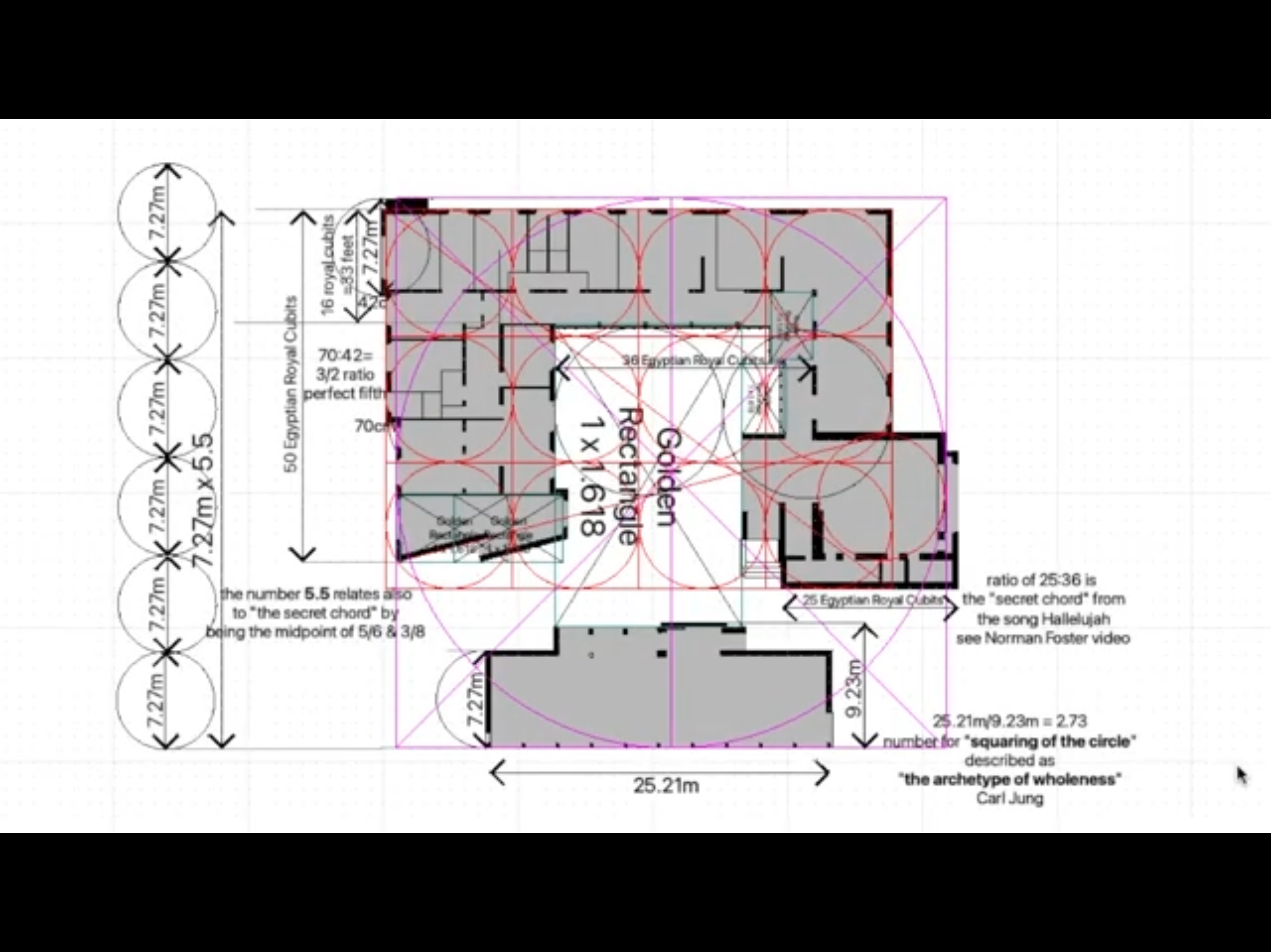
In recent years, Roger has adopted a holistic design philosophy, emphasizing Applied Sacred Geometry. His research has unearthed new, previously unknown dimensions in the work of 20th-century greats like Mies van der Rohe and Alvar Aalto.

Roger’s work also extends beyond the architectural. After a meaningful collaboration with a mother whose son is autistic, he gained insight into how design can shape environments for greater calm and comfort. Now, he actively consults with families, offering tailored design solutions that leverage Sacred Geometry to foster supportive spaces. Through his work, Roger strives to connect with and uplift the autistic community, creating environments that genuinely enhance wellbeing.

Projects

Sculptural Works Thumbnail

Articles

Sculptural Works Thumbnail

Enquire

Sculptural Works Thumbnail